Kastlová okna
se od špaletových oken liší tím, že vnitřní i venkovní křídlo se otevírá do místnosti, a především pak tím, že vnitřní a vnější křídla okna jsou k sobě spojena „kastlí". Jakýmsi rámem po celém obvodu okna. Někdy se kastlovým oknům říká kastlíková okna.
.
Kastlová okna se vyvinula z oken špaletových (na vnější křídla otevřená dovnitř většinou neprší a jsou používány v modernějších stavbách s užšími zdmi, ale zase si do oken nedáte muškáty) a jsou nejčastěji používanou variantou v historické zástavbě většiny měst - známé činžáky z 19. a první poloviny 20. století.
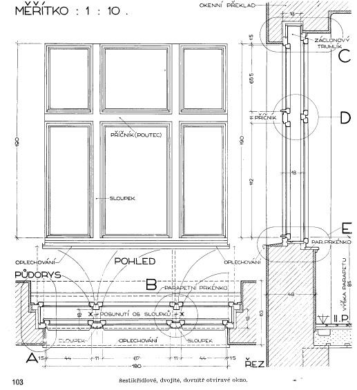
Dřevěná kastlová okna pohledem staré výrobní dokumentace
REFERENCE:
2016, Repliky kastlových oken, uliční i dvorní fasáda, smrk lepený, zasklení jedno sklo plus dvojsklo, vysokotlaký nástřik
Realizace: 2013, uliční fasáda repliky stávajících dřevěných kastlových oken a balkonových sestav, smrkový masiv, zasklení jednoduché sklo plus dvojsklo, nástřik - bílá, ozdobné profilované prvky na poutcích a klapačkách
Copyright ©2008 | www.truhlarstvi-bobrova.cz
2020-10-25
2013-08-07
Novostaba rodinného domu v Malé Lhotě u Černé hory získala GRAND PRIX ARCHITEKTŮ 2011 - Národní cenu za architekturu v kategorii "Rodinný dům". Truhářství Bobrová bylo dodavatelem truhlářských prvků (obložení stěn, schody, vestavěné skříně, zábradlí, kuchyňská linka, koupelna, ložnice, opláštění vrat a posuvných panelů, vchodové dveře, konferenční stolek, stůl ...)
http://www.truhlarstvi-bobrova.cz/reference-rodinne-domy/rodinny-dum-mala-lhota-u-cerne-hory/